MẪU NHÀ MÁI NHẬT 2 TẦNG 8X12M BTT2401 HIỆN ĐẠI, SANG TRỌNG CHO GIA ĐÌNH VIỆT
Nhà mái nhật 2 tầng đang trở thành xu hướng thiết kế được nhiều gia đình lựa chọn trong những năm gần đây. Với vẻ đẹp hài hòa, thanh lịch, cùng công năng tối ưu, mẫu nhà này không chỉ đáp ứng nhu cầu sống tiện nghi mà còn thể hiện gu thẩm mỹ tinh tế của chủ nhà.
Dưới đây là mẫu Nhà mái nhật 2 tầng 8x12m BTT2401 do Kiến trúc Vietlife thiết kế – một trong những mẫu được đánh giá cao về thẩm mỹ và công năng.
⭐ 1. Phối cảnh ngoại thất Nhà mái nhật 2 tầng
Mẫu biệt thự nổi bật với hệ mái Nhật màu nâu sẫm thanh lịch, độ dốc vừa phải giúp thoát nước tốt và tạo cảm giác cân đối cho tổng thể công trình. Kiến trúc nhà theo phong cách hiện đại, sử dụng các mảng tường phẳng, đường nét vuông gọn giúp mặt tiền trông sang trọng, vững chãi.
Màu sắc chủ đạo là trắng – nâu , đem lại cảm giác nhã nhặn, phù hợp với gia chủ yêu thích phong cách nhẹ nhàng nhưng hiện đại.
Điểm nhấn của ngôi nhà:
- Ban công rộng, lan can kính an toàn – tạo sự thông thoáng và tầm nhìn đẹp.
- Hệ cửa nhôm kính Xingfa tối màu giúp lấy sáng tự nhiên, đồng thời tăng vẻ sang trọng.
- Cây xanh phong thủy bố trí tinh tế ở sảnh và ban công, mang lại sinh khí và thẩm mỹ cao.
- Sảnh chính thiết kế mái đua che chắn, giúp mặt tiền khỏe khoắn và tạo điểm nhấn thu hút.



⭐ 2. Công năng sử dụng tối ưu của Nhà mái nhật 2 tầng


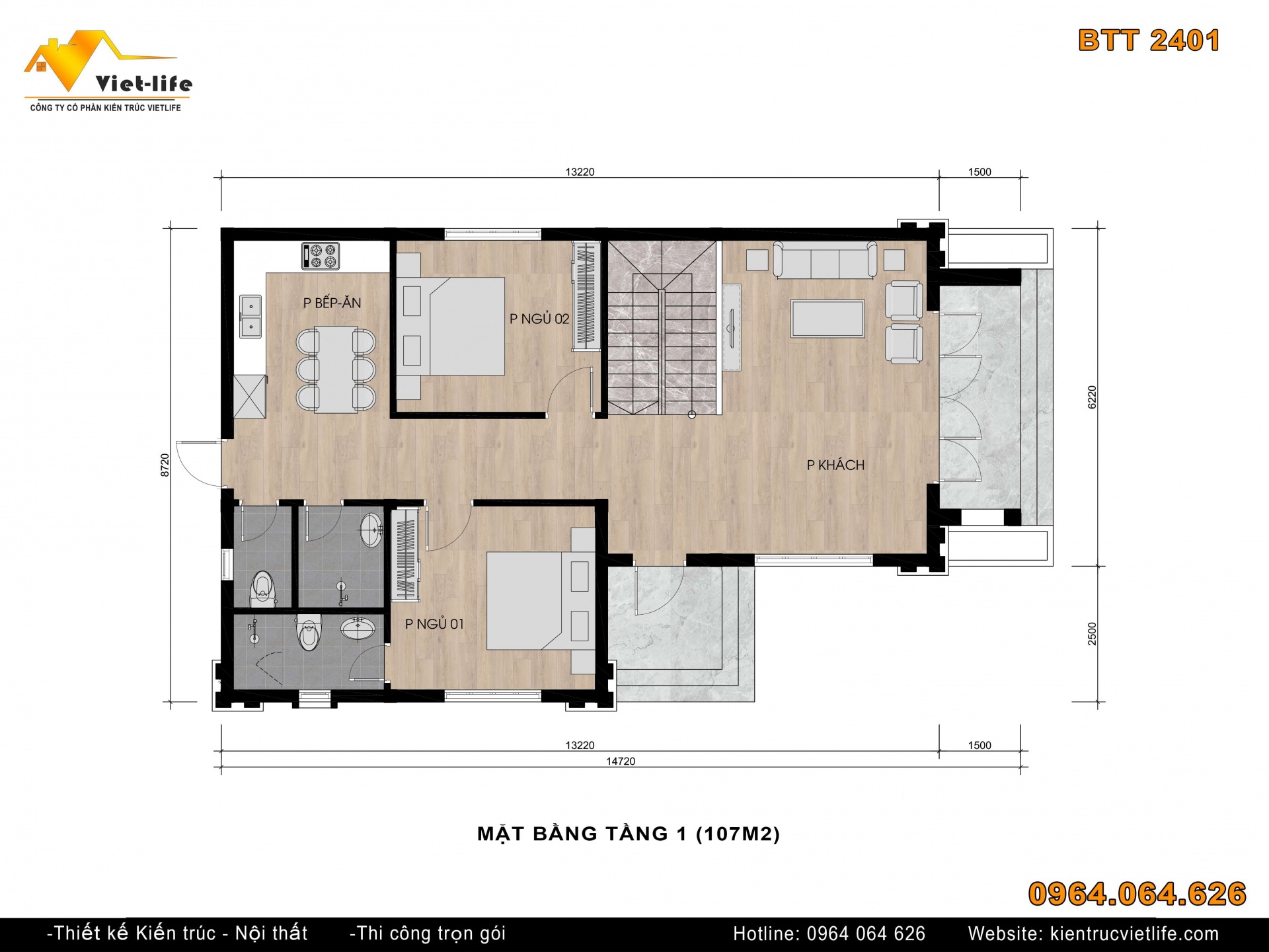
Nhà mái nhật 2 tầng này được bố trí công năng khoa học, phù hợp với những gia đình 4–6 thành viên.
Tầng 1 gồm:
- Phòng khách rộng thoáng, kết nối trực tiếp với cửa chính.
- Phòng bếp – ăn tách biệt, tạo không gian sinh hoạt chung ấm cúng.
- Tầng 1 có 2 phòng ngủ tiện lợi cho người lớn tuổi.
- WC chung được phân chia nhu cầu sử dụng, nhằm tối ưu sử dụng
Tầng 2 gồm:
- 2 phòng ngủ thiết kế riêng tư, nhiều ánh sáng tự nhiên.
- Phòng sinh hoạt chung hoặc phòng thờ tùy yêu cầu gia chủ.
- Ban công rộng thoáng, thích hợp trồng cây, thư giãn.
Nhờ cách bố trí tối ưu, ngôi nhà mang đến trải nghiệm sống thoải mái, phù hợp mọi độ tuổi trong gia đình.
⭐ 3. Ưu điểm của Nhà mái nhật 2 tầng
✔ Thẩm mỹ cao – hợp xu hướng
Mái Nhật mang vẻ đẹp tinh tế, hài hòa với kiến trúc Á Đông.
✔ Tối ưu công năng – thông thoáng tự nhiên
Nhiều cửa kính lớn giúp ngôi nhà luôn sáng và mát mẻ.
✔ Chi phí xây dựng hợp lý
So với biệt thự tân cổ điển, chi phí thiết kế – thi công mái Nhật tiết kiệm hơn nhưng vẫn sang trọng.
✔ Độ bền cao – phù hợp khí hậu Việt Nam
Mái Nhật chống nóng tốt, chịu gió bão hiệu quả và ít phải bảo trì.
Kết luận
Mẫu Nhà mái nhật 2 tầng là lựa chọn lý tưởng cho các gia đình mong muốn một không gian sống sang trọng, hiện đại và tiện nghi. Với phong cách tinh tế, công năng hợp lý và chi phí phù hợp, đây chắc chắn là giải pháp hoàn hảo cho ngôi nhà tương lai của bạn.
Hồ sơ thiết kế mẫu Nhà mái nhật 2 tầng bao gồm:
-
Bản vẽ chi tiết kiến trúc và phối cảnh ngoại thất 3D
-
Bản vẽ kết cấu công trình
-
Bản vẽ hệ thống ME (Điện – Nước – Điều hòa – Thông gió – An ninh…)
-
Toàn bộ hồ sơ thiết kế công năng các phòng và kiến trúc đều được tư vấn hợp theo Phong thủy và tuổi của chủ đầu tư. Kích thước các phòng, chiều cao nhà và kích thước cửa đều theo kích thước phong thủy.
CÔNG TY CP KIẾN TRÚC VIET-LIFE
Địa chỉ: Số 7 - Đại lộ Thăng Long - Phường Trung Hòa - Quận Cầu Giấy - Tp. Hà Nội
Hotline: 0964.064.626
Email: kientrucvietlife@gmail.com
Nếu bạn thích bài viết trên, hãy like và share cho bạn bè
THÔNG TIN DỰ ÁN
Diện tích xây dựng tầng 1 107m2
Công năng sử dụng
Tầng 1: Khách bếp, 2 ngủ
Tầng 2 : 2 ngủ , 1 thờ, sân phơi
Kích thước xây dựng : 8.7x14.7m
Diện tích xây dựng 115m2
Công năng 3 tầng : khách bếp, 5 phòng ngủ, 1 phòng thờ
Kích ...
Diện tích xây dựng 87m2
Công năng sử dụng : khách bếp , 3 phòng ngủ, 1 thờ
Kích thước ...
Diện tích xây dựng 93m2
Công năng 4 tầng: khách bếp, 4 phòng ngủ, 1 phòng thờ
Kích ...
Diện tích xây dựng tầng 1 90m2
Công năng sử dụng: khách+bếp, 4 phòng ngủ , 1 phong thờ
...
Diện tích xây dựng tầng 1 90m2
Công năng sử dụng: khách+bếp, 4 phòng ngủ , 1 phong thờ
...
Diện tích xây dựng tầng 1: 145m2
Công năng sử dụng
Tầng 1: Khách-bếp, 2 phòng ngủ, 1 ...