BIỆT THỰ MÁI NHẬT 2 TẦNG RỘNG 7.5M BTT2403




Hồ sơ thiết kế mẫu biệt thự mái nhật 2 tầng bao gồm:
-
Bản vẽ chi tiết kiến trúc và phối cảnh ngoại thất 3D
-
Bản vẽ kết cấu công trình
-
Bản vẽ hệ thống ME (Điện – Nước – Điều hòa – Thông gió – An ninh…)
-
Toàn bộ hồ sơ thiết kế công năng các phòng và kiến trúc đều được tư vấn hợp theo Phong thủy và tuổi của chủ đầu tư. Kích thước các phòng, chiều cao nhà và kích thước cửa đều theo kích thước phong thủy.
CÔNG TY CP KIẾN TRÚC VIET-LIFE
Địa chỉ: Số 7 - Đại lộ Thăng Long - Phường Trung Hòa - Quận Cầu Giấy - Tp. Hà Nội
Hotline: 0964.064.626
Email: kientrucvietlife@gmail.com
Nếu bạn thích bài viết trên, hãy like và share cho bạn bè
THÔNG TIN DỰ ÁN
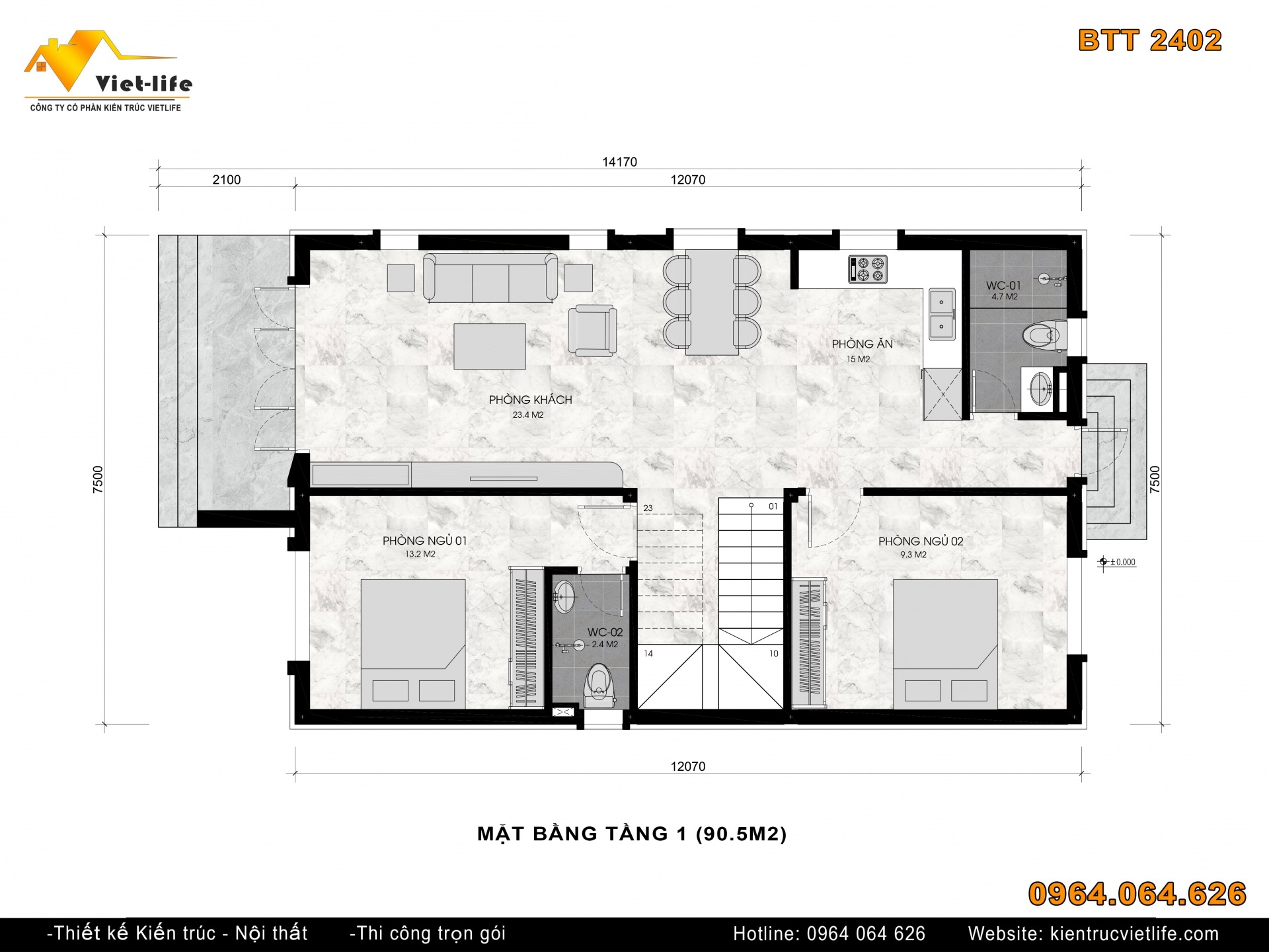
Diện tích xây dựng tầng 1 90m2
Công năng sử dụng: khách+bếp, 4 phòng ngủ , 1 phong thờ
Kích thước xây dựng : 7.5x12m
Diện tích xây dựng 115m2
Công năng 3 tầng : khách bếp, 5 phòng ngủ, 1 phòng thờ
Kích ...
Diện tích xây dựng 87m2
Công năng sử dụng : khách bếp , 3 phòng ngủ, 1 thờ
Kích thước ...
Diện tích xây dựng 93m2
Công năng 4 tầng: khách bếp, 4 phòng ngủ, 1 phòng thờ
Kích ...
Diện tích xây dựng tầng 1 90m2
Công năng sử dụng: khách+bếp, 4 phòng ngủ , 1 phong thờ
...
Diện tích xây dựng tầng 1: 145m2
Công năng sử dụng
Tầng 1: Khách-bếp, 2 phòng ngủ, 1 ...
Diện tích xây dựng tầng 1 107m2
Công năng sử dụng
Tầng 1: Khách bếp, 2 ngủ
Tầng 2 ...