CẢI TẠO NHÀ PHỐ 3 TẦNG NPC2407
1. Phối canh kiến trúc nhà phố 3 tầng




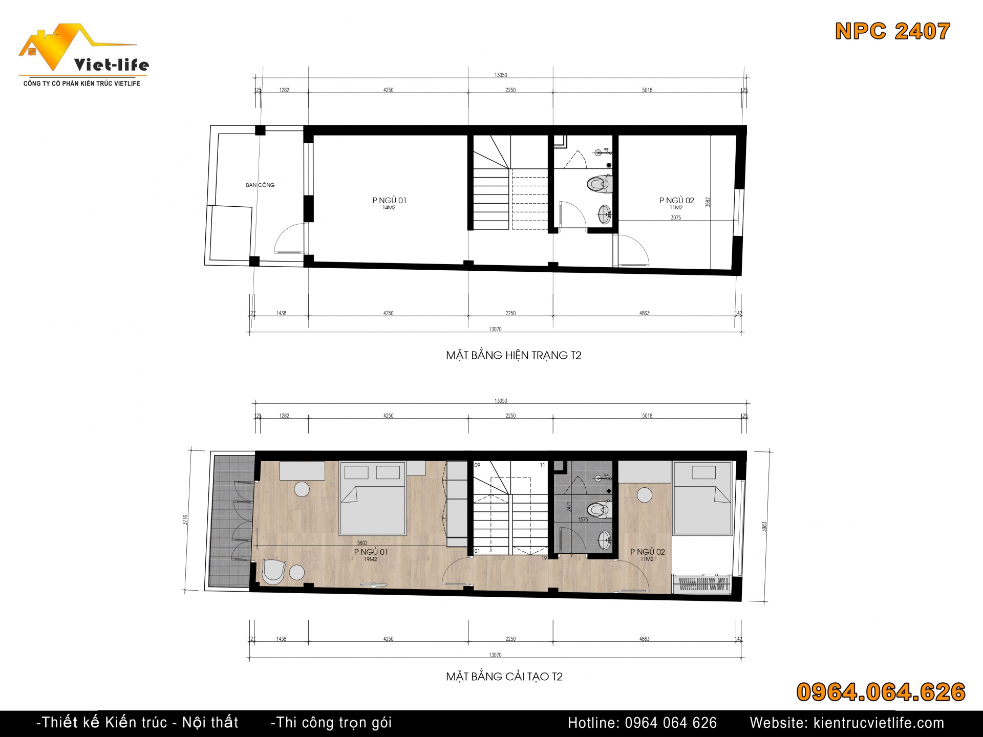
2. Mặt bằng cải tạo nhà phố 3 tầng



3. Phối cảnh thiết kế nội thất nhà phố 3 tầng









Phối cảnh nội thất tầng 2








Hồ sơ thiết kế nhà phố 3 tầng bao gồm:
-
Bản vẽ chi tiết kiến trúc và phối cảnh ngoại thất 3D
-
Bản vẽ kết cấu công trình
-
Bản vẽ hệ thống ME (Điện – Nước – Điều hòa – Thông gió – An ninh…)
-
Toàn bộ hồ sơ thiết kế công năng các phòng và kiến trúc đều được tư vấn hợp theo Phong thủy và tuổi của chủ đầu tư. Kích thước các phòng, chiều cao nhà và kích thước cửa đều theo kích thước phong thủy.
CÔNG TY CP KIẾN TRÚC VIET-LIFE
Địa chỉ: Số 7 - Đại lộ Thăng Long - Phường Trung Hòa - Quận Cầu Giấy - Tp. Hà Nội
Hotline: 0964.064.626
Email: kientrucvietlife@gmail.com
Nếu bạn thích bài viết trên, hãy like và share cho bạn bè
THÔNG TIN DỰ ÁN
Diện tích xây dựng : 48m2
Kích thước xây dựng : 3.7x13m
Công năng: khách bếp, 3 ngủ, 1 thờ
Diện tích xây dựng: 102m2
Kích thước: 7x16m
Công năng: Kinh doanh, phòng khách bếp, 3 ...
Kích thước xây dựng 6x18m
Diện tích xây dựng : 108m2
Công năng: khách bếp, 4 ngủ, 1 ...
Diện tích xây dưng 85m2
Kích thước 5x17m
Công năng 1 tầng 3 căn hộ
Diện tích xây dựng: 85m2
Kích thước 5x17m
Công năng sử dụng : khách-bếp, 4 ngủ, 1 ...
Diện tích xây dựng : 90m2 x tầng 1 tum
Kích thước : 4.5x20m
Công năng : Kinh doanh, ...
Diện tích xây dựng 50.4m2
Kích thước 4.2x12m